Stadtheidebach
Der Stadtheidebach ist ein sehr technisch ausgebautes Gewässer. An zwei Abschnitten wird das Gewässer durch Renaturierungsmaßnahmen ökologisch aufgewertet.
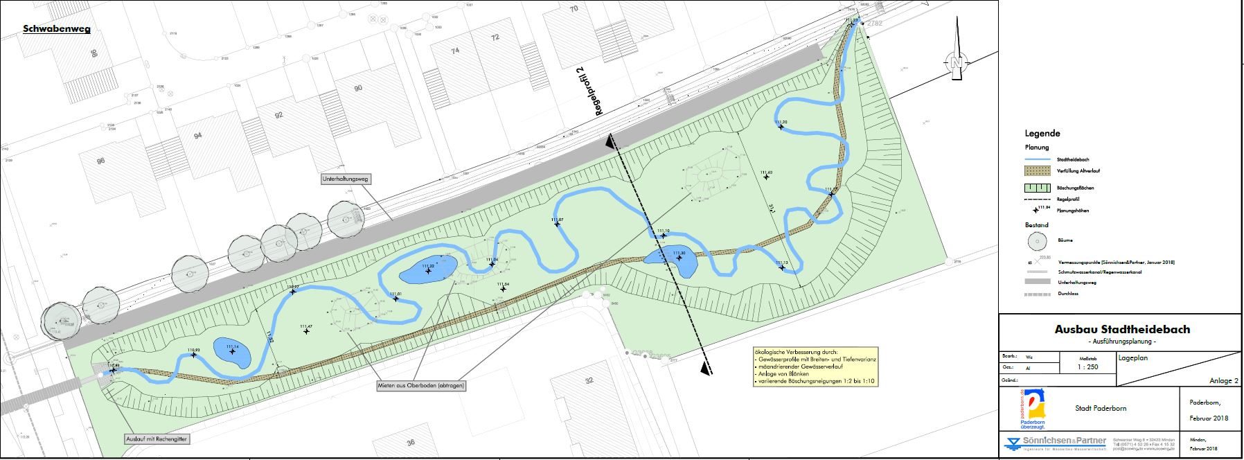
Die Baumaßnahme - Schwabenweg
Nach Fertigstellung - Nach den ersten Regenfällen haben sich sowohl der Gewässerlauf, als auch die Blänken wieder mit Wasser gefüllt. Die eingebauten Weidenstämme schießen bereits neu aus.
Baumaßnahme - Abschnitt Schwabenweg - Am 25.06.2018 wurde mit den Bauarbeiten an der Fläche am Schwabenweg begonnen. Die Vorbereitungen wie die Mahd der Fläche und das Fräsen des Oberbodens wurden schnell abgeschlossen. Dank der guten Wetterverhältnisse konnte auch der Boden problemlos abtransportiert werden. Mittlerweile sind sowohl die neue Aue, als auch das neue Gewässerbett und die hergestellten Blänken gut zu erkennen.
Vor Baubeginn - Abschnitt Schwabenweg - Vor Baubeginn war der Stadtheidebach in diesem Bereich ein kleines kanalartiges Gewässer mit steilen Böschungen am Rande einer nährstoffreichen Wiesennutzung.
